The Enhanced Garage is a garage with a rear studio apartment. Click HERE
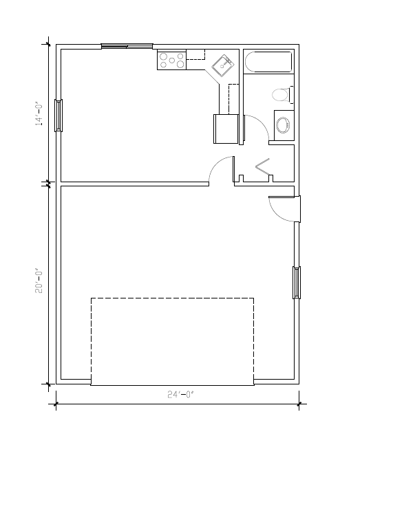
The 24′ x 34′ Enhanced Garage designed by William Edward Summers for online design firm easybuildingplans.com, is a simple inexpensive mixed use building plan. It is designed to generate revenue from renting the micro apartment as well as the garage as parking or shop space. It can work as a cabin or a retreat.The plans are ready for building permit application
Here is what you get: floor plans, foundation plans, roof plan, four elevations, a section connection details and general specifications.
Building Specifications: 2″x6″ wood framed walls, pre-manufactured truss roof framing, reinforced slab foundation, corner brace walls with a sturdy shear nailing pattern, stem wall of foundation is 3″ above slab. 5:12 roof pitch,
24″x36″ sized sheets, shipped via email PDF files, delivery within 72 hours. Print out at any blueprint shop
Contact me via the form below and be sure to include your shipping email with your order


can I get contacted please on how much it would cost for this with the land and setup from lenders in the Orange County Area
I will email you
I live in santa maria,ca and I’d like to know a rough estimate of how much it costs to build this building with the studio? Thanks
The best way to find the lowest cost is to give the plans to three contractors who live near the project site
We can do $60K.
What’s your company name?
easybuildingplans.com
Check out “construction network service” they have steel home kits, just summit this plans.
Sounds good I would be happy to co-ordinate with your company and provide our copyrighted designs and plans.
https://easybuildingplans.com/small-inexpensive-cash-flow-real-estate-building-plans/
Ferndale wa
I will get back with you directly this week
I am interested in this plan…? I too am curious about the question from Jimmy and Julie Thank you
I might be able to refer lenders and a builder if I know what city you are in.
hi the enhanced garage can be build in sanbernardino california unated states.
Yes. Many people in California have bought the plan this last week.
I am interested in this .
This sale price will be ending in about a week.
Can you recommend a construction loan company that works with you if we have the land.
Can you also recommend a builder and the cost to build this particular model.
Thanks
What city are you in?
I might be able to refer you to lenders and builders if I know what city you are in.