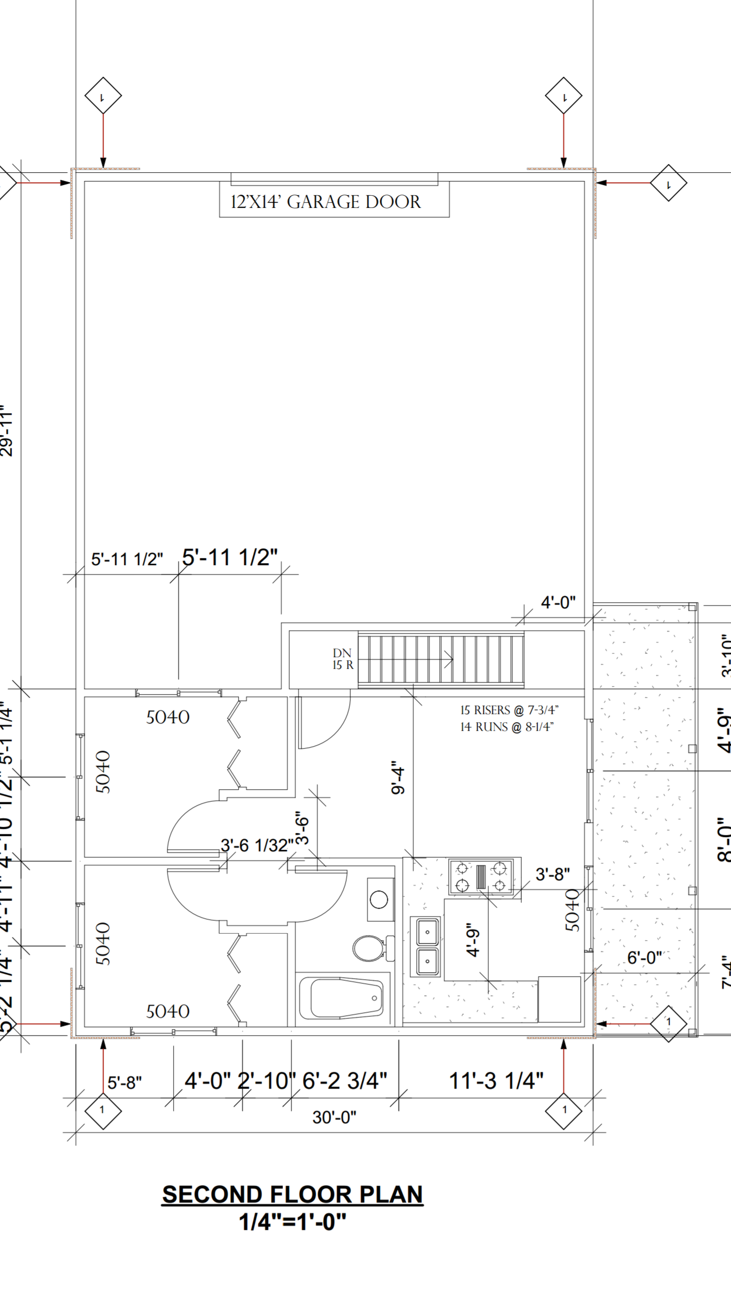
Dream Shop
This Dream Shop features a two story high 30′ x 30′ shop area with a huge 12 foot roll up door.
Behind that is a 20’x 30′ mezzanine with a compact two bedroom apartment.
Under the apartment is another 600 square feet of shop area, or can be a second apartment.
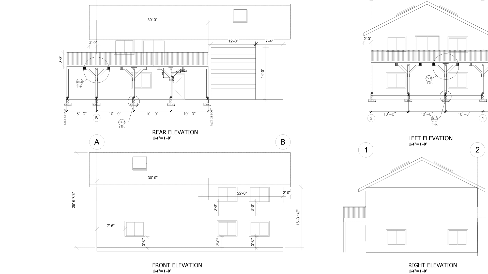
The entire building is 30′ x 50′
Another version with the shop below and a family sized apartment above is also available. Inquire using any form on this site
CUSTOMIZATION AVAILABLE
This building offers amazing flexibility. The complete ready-to-use building plans can be in your hands now. This plan has been built in California, Oregon, Washington, Canada and beyond. The plans are updated to reflect recent changes in the building code.
The side door version of this plan has a 30 x 30 foot mezzanine
What you get:
four elevations, foundation plan, second floor framing at mezzanine, roof framing plan, a section, framing & connection details, general specifications.
Questions? Use the form below






