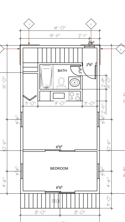
Mini Coach House 16 x 34 Mini Coach House The Mini Coach House A large shop or garage below with a cozy one bedroom apartment above Immediate Download Apartment Floor Plan ← BackThank you for your response. ✨ Name(required) Email(required) Website Comment(required) Telephone (for best communication) Submit Δ Share this: Share on X (Opens in new window) X Share on Facebook (Opens in new window) Facebook Like Loading...