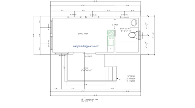
Cute and easy to build, The Tiny School House is 8′-6″ x 20′-0″. The design is inspired by 19th century one room prairie school houses. Conceived as a space for home schooling, or a learning center for an existing school. It would also work as a winter playroom, or even an office. It has a full bath and a kitchenette, so is viable as a micro apartment.


