Downsize and Travel While Your New House Makes You Money. Get the ready-to-use plans and build the Traveler’s Triplex. Great AIRBNB project.
How would you like to downsize a bit, do some traveling, and return home to a brand new house that is making you cash flow year in and year out?
Of course you will want room for visitors to spend the night but still do not want tons of extra unused space. Why not create your own six-figure business , an AIRBNB “hotel”?
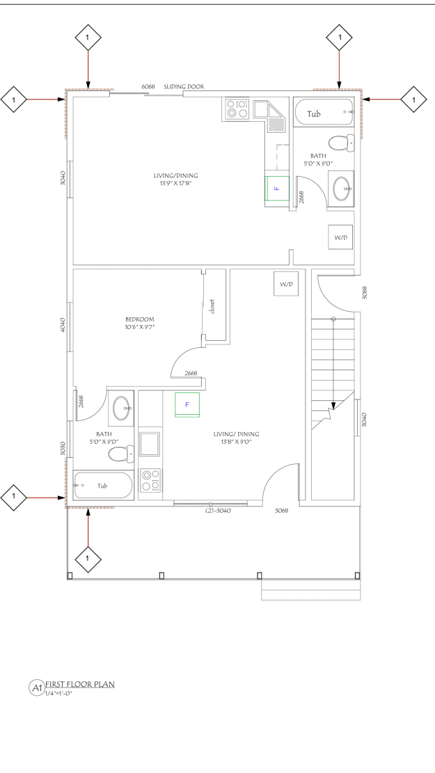
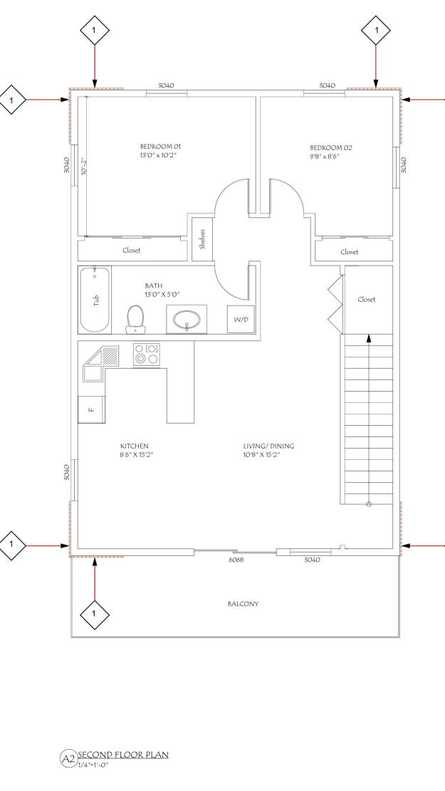
The new breakthrough “Traveler’s Triplex” ready-to-use building plans by easybuildingplans.com provides this opportunity all in a very compact and inexpensive building that is smaller than the typical house.
The Traveler’s Triplex ready-to-use building plans,
We can modify or customize to fit your needs. Please use the form below for questions
PLANS ARE SENT AS PDF Files. Please use a valid email address.
What You Get
Four elevations
floor plan
foundation plan
second floor framing plan
section
roof framing plan
connection details
general specifications
Questions? Use the form below to contact me
Your message has been sent
Keywords; travel, airbnb, vacation rental, income real estate, income property, retirement house, modern house, new house, new multi-unit,


