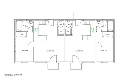
Each unit complies with the minimum small dwelling area requirements of the International Code Council
The overall building footprint is 20 x 46 feet.
Each unit is approximately 455 square feet.
Please use contact form to learn more.
Your message has been sent
