
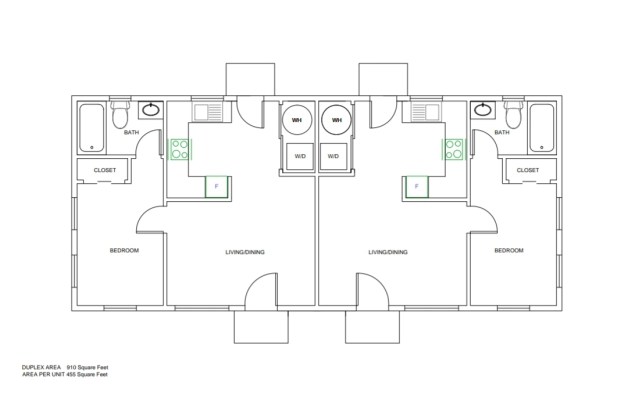
Micro Duplex floor plan
Each unit complies with the minimum small dwelling area requirements of the International Code Council
The overall building footprint is 20 x 46 feet.
Each unit is approximately 455 square feet.
Please use any contact form to learn more.